フロアガイド
更新日:
ページID:P0011809
印刷する
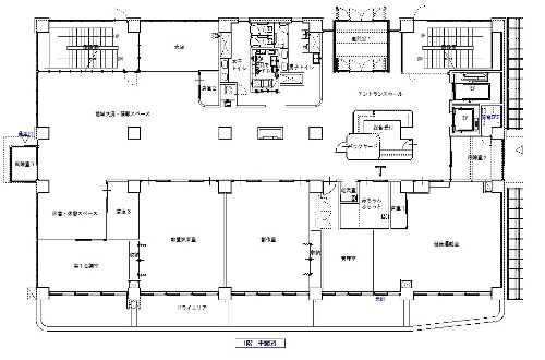
1階

受付や健康運動室などのお部屋、売店、地域交流スペースがあります。
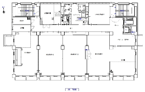
2階

お子さんの健診などを行います。
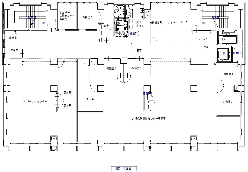
3階

大横保健福祉センターやシルバー人材センター、高齢者活動コーディネートセンターの事務室があります。
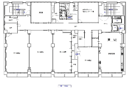
4階

調理実習室や講習室、会議室があります。
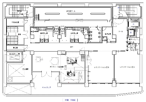
地下1階

室内歩行用プール、レクリエーション室があります。
関連ファイル
大横保健福祉センター利用料金一覧(PDF形式 55キロバイト)
※PDFファイルの閲覧には、Adobe Acrobat Reader DC(新しいウインドウが開き八王子市のサイトを離れます)が必要です。
このページに掲載されている情報のお問い合わせ先
- 健康医療部成人保健課(大横保健福祉センター)
-
〒192-0062 八王子市大横町11-35
電話:042-625-9128
ファックス:042-627-5887


